Turkov Zenit HECO-750 EH/EH 3.0/4.5E
Приточно-вытяжная установка Zenit HECO
Вентиляционная установка Turkov Zenit HECO-750 EH/EH 3.0/4.5E с рекуперацией тепла и влаги в металлическом корпусе предназначена для поддержания климата в жилых помещениях, офисах, магазинах.- Воздухообмен 750 м³/ч.
- Нагреватель 3.0/4,5 кВт. ( Переключаемый )
- 3 ступени рекуперации ( до -35°С )
- Экономит тепло, КПД возврата 78%
- Рабочая площадь рекуператора 22.5 м²
- Для жилых помещений до 250 м²
- Для офисов и производств до 85 м²
- Подключение к УМНОМУ ДОМУ
- WiFi управление с мобильного телефона
Комплектация установки:
- фильтр приточный и вытяжной F5
- вентилятор приточный и вытяжной
- Три энтальпийных рекуператора
- датчик температуры уличного воздуха
- датчик температуры приточного воздуха
- автоматика (monocontroller v.2)
- электрический нагреватель
- настенный пульт управления (Базовый)
- корпус с тепло-шумоизоляцией «Сен-Гобен» 50мм
- три кронштейна для монтажа установки к стене или потолку
Функциональная схема:
СР - встроенный Monocontroller Turkov v.2
P - настенный пульт управления
М1 - приточный вентилятор
М2 - вытяжной вентилятор
D1 - датчик температуры уличного воздуха
D2 - датчик температуры приточного воздуха
К1, К2, K3 - энтальпийный рекуператор
F1 - воздушный фильтр вытяжного воздуха
F2 - воздушный фильтр приточного воздуха
E - Электрический нагреватель 3,0/4,5кВт.
Возможности установки:
- Стабильная работа рекуператора до -35°С
- Точное поддержание температуры подаваемого воздуха
- Плавное управление мощностью нагревателя.
- Переключаемая максимальная мощность нагревателя (3,0/4,5кВт)
- 3 индивидуально настраиваемые скорости
- Раздельная настройка приточного и вытяжного вентилятора
- Возврат тепла, КПД возврата 78%
- Возврат влаги, КПД возврата 40-50%
- Наладка оборудования на заводе-изготовителе
- Разрешён монтаж на улице или в холодных помещениях
- Отсутствует конденсат
- Работает без преднагрева
- Монтируется в любом положении
Возможности автоматики:
- индивидуальная настройка трех скоростей вентилятора
- индивидуальная настройка приточного и вытяжного вентилятора
- программирование установки на неделю, 6 событий в день
- контроль воздушного фильтра по времени отработки
- управление электрическим нагревателем
- авто рестарт при пропадании питания
- Системы защиты, коды ошибок, архив аварий
- "АВАРИЯ" подключение пожарной сигнализации
- "ПАУЗА" прерывание работы по сигналу внешнего устройства через "сухой контакт"
- контроль рекуператора от обмерзания
- подключение к умному дому по протоколу MODBUS 485
- WiFi управление с мобильного телефона
- управление воздушными заслонками (откр./закр.)
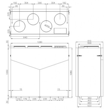
Размеры:
График статического давления:
| Альтернативная маркировка | ZENIT HECO-750 EH/EH 3.0/4,5E220 | 
| Бренд | Turkov | 
| Вес | 118 кг | 
| Вес в упаковке | 130 кг | 
| Воздуховод | круглый | 
| Воздухообмен (максимальный) | 750 м3/ч | 
| Гарантия | 3 года | 
| Диаметр | 250 мм | 
| Код товара | 167192 | 
| Модель | Zenit HECO-750 EH/EH 3.0/4.5E | 
| Мощность двигателя вентилятора | 0.385 кВт | 
| Мощность электрического нагревателя | 3 кВт | 
| Особенность | пластинчатый рекуператор | 
| Размеры | 1280x1360x610 мм | 
| Рекомендуем для | для дома / для офиса | 
| Рекуператор | Есть | 
| Серия | Zenit HECO | 
| Страна производитель | Россия | 
| Страна сборки | Россия | 
| Тип вентиляционной установки | компактная приточно-вытяжная | 
| Тип нагревателя | электрический | 
| Ток | 18 А | 
| Уровень шума | 62 дБ | 
| Электропитание | 220/50/1 В/Гц/Ф | 
                          Написать отзыв
                        
                      Нет отзывов об этом товаре.
 
       
                         
                         
                         
                         
                         
                         
                         
                         
                         
                         
                     
                    