Systemair Topvex SF04 HWL
Приточная вентиляционная установка
Особенности Systemair Topvex SF
- 6 типоразмеров с расходом воздуха от 150 до 4500 м3/ч
- Низкое потребление электроэнергии
 -Энергоэффективный прямоточный вентилятор с EC- двигателем
- Встроенная запрограммированная система автоматики
 - Встроенный годовой планировщик позволяет устанавливать параметры работы на каждую неделю с учетом праздничных и выходных дней в течение года
 - Эффективные энергосберегающие функции
- Бесступенчатое управление вентилятором
 - Поддержание постоянного давления в системе
 - VAV, доступно как аксессуар
- Большие инспекционные двери для легкого сервисного и технического обслуживания
 - Легкий доступ к основным компонентам и электрическим соединениям облегчает ввод агрегата в эксплуатацию и техническое обслуживание
- Корпус из листовой стали с алюцинковым покрытием (AZ185)
 - Коррозионный класс C4 (Промышленные и прибрежные районы с умеренной солёностью)
 - Срок службы листовой стали с покрытием AZ185 – более 50 лет
- Управление внешним водяным или фреоновым охладителем
- Управление внешним вытяжным EC- вентилятором
- Заводское тестирование
Topvex SF серия эффективных приточных воздухообрабатывающих агрегатов, разработанных для вентиляции автозаправочных станций, магазинов, офисов и других небольших помещений. Агрегаты легко монтировать и вводить в эксплуатацию.
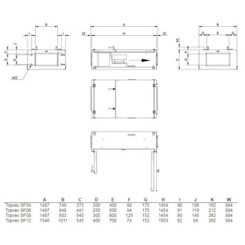
Корпус установки Systemair Topvex SF04 HWL представляет собой сэндвич-конструкцию с двух сторонней обшивкой из листовой стали с алюцинковым покрытием, AZ 185, с тепло-звукоизоляцией из минеральной ваты толщиной 50мм. Мешочный фильтр M5 с большой фильтрующей поверхностью обеспечивает длительный промежуток времени между заменами и низкие перепады давления. Агрегаты Topvex SF доступны к заказу в комплектации с электрическим нагревателем, в двух вариантах мощности на выбор, для типоразмеров SF02–SF06 или с водяным нагревателем, так же с двумя разными по мощности нагревателями, для типоразмеров SF02 – SF12.
Удобный доступ к клеммной коробке, которая включает в себя все электрические соединения, облегчает сервисное и техническое обслуживание агрегата.
Встроенная и запрограммированная система управления упрощает монтаж и ввод агрегата в эксплуатацию. Topvex SF имеет удобную для пользователя русифицированную систему управления с удобно структурированным меню. Встроенный «Мастер запуска» укажет какие настройки необходимо задать для корректной работы агрегата. Встроенная система управления позволяет управлять скоростью вентилятора, температурой воздуха, и параметрами работы в течение недели. Topvex SF имеет другие энергосберегающие функции, такие как свободное охлаждение, сезонное соотношение температур, управление вентилятором. Переключение между нормальной и сниженной скоростью вентилятора в зависимости от показателей датчиков CO2-, VOC-, датчика влажности или детектора движения.
VAV, постоянное поддержание расхода в системе доступно опционально.
В стандартную комплектацию Topvex SF входят следующие коммуникационные функции: Built-inweb, Cloud, Modbus, BACnetи Exoline. LON доступен опционально.
Конфигуратор E-tool. Etool© это компьютерная программа с графическим интерфейсом. Программа дает прекрасную возможность просмотра настроек контроллера CorrigoE. Используя программу Etool©, все настройки могут быть выполнены на компьютере и загружены в контроллер. Определенная конфигурация контроллера может быть сохранена на компьютере для дальнейшего использования.
Обозначение агрегата.
- Модель: SF (Приточный воздухообрабатывающий агрегат)
- Типоразмеры: 02, 03, 04, 06, 08 и 12 (02 ≈ 0,2 м3/с при номинальном расходе воздуха).
- Нагреватель:
 EL (Электрический, два варианта мощности на выбор). Доступен для типоразмеров SF02-SF06.
 HWL (Водянойнагреватель, низкой мощности). Доступен для типоразмеров SF02 - SF12.
 HWH(Водяной нагреватель, высокой мощности). Доступен для типоразмеров SF02 - SF12.
- Регулирование воздушного потока (аксессуар): 
 VAV (Переменный расход воздуха = поддержание постоянного давления в системе).
| Бренд | Systemair | 
| Вес | 70.6 кг | 
| Вес в упаковке | 78 кг | 
| Воздухообмен (максимальный) | 1728 м3/ч | 
| Воздухообмен (минимальный) | 360 м3/ч | 
| Гарантия | 3 года | 
| Код товара | 137931 | 
| Модель | Topvex SF04 HWL | 
| Мощность двигателя вентилятора | 0.54 кВт | 
| Особенность | VAV-совместимая установка | 
| Предохранитель | 10 A | 
| Серия | Topvex SF | 
| Страна производитель | Швеция | 
| Тип вентиляционной установки | компактная приточная | 
| Тип нагревателя | водяной | 
| Ток | 2.36 А | 
| Уровень звукового давления на расстоянии 3м | 53.8 дБ(А) | 
| Частота вращения | 3699 об/мин | 
| Электропитание | 220/50/1 В/Гц/Ф | 
Нет отзывов об этом товаре.
 
       
                         
                         
                    